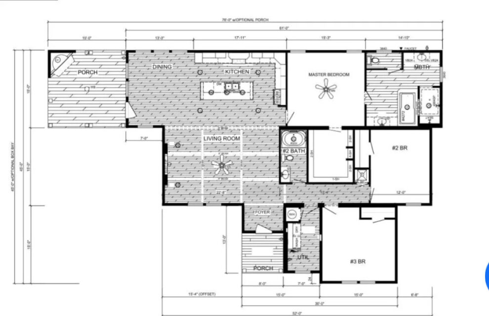
Step into this inviting 3-bedroom, 2-bathroom home, at just under 2,000 sq ft, where comfort and elegance merge seamlessly. The spacious layout is complemented by not one, but two cozy fireplaces, offering warmth and ambiance throughout. Whether you’re curled up with a book in the living room or enjoying a meal in the dining area, the flickering flames create a welcoming atmosphere year-round.
One of the highlights of this home is the expansive attached side porch, complete with its own outdoor fireplace. Perfect for alfresco dining, entertaining guests, or simply relaxing with loved ones, this outdoor oasis provides a serene retreat right at your doorstep. From sunrise coffees to evening gatherings under the stars, the porch offers endless opportunities to enjoy the beauty of nature.
Inside, the three well-appointed bedrooms provide ample space for rest and relaxation, while the two bathrooms ensure convenience for all residents. With its charming design, thoughtful features, and outdoor living space, this 3-bedroom, 2-bathroom home is the epitome of comfort and style.








