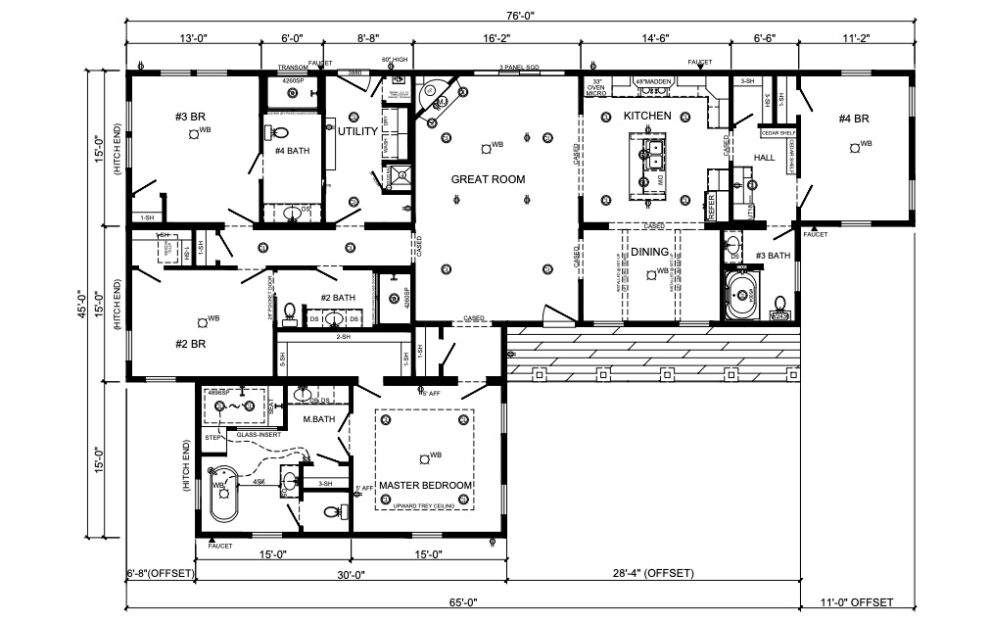
The Wren is a charming 4-bedroom, 4-bathroom house, over 2400 sq ft, creating a perfect blend of modern convenience and classic comfort. Each bedroom boasts its own en suite, providing privacy and luxury for every resident and guest. With an emphasis on spaciousness and openness, the home welcomes you into a warm and inviting atmosphere from the moment you step through the door.
The heart of the home lies in its expansive kitchen and living room, designed for effortless entertaining and relaxation. The kitchen is a chef’s dream, featuring sleek countertops, state-of-the-art appliances, and ample storage space. Whether you’re hosting a lively gathering or enjoying a quiet evening with loved ones, the open layout ensures that everyone can mingle and converse with ease. Adjacent to the kitchen, the inviting living room beckons with its cozy ambiance, perfect for unwinding after a long day or engaging in conversations.
Outside, the front porch invites you to unwind and soak in the sights and sounds of the world. Whether you’re sipping your morning coffee or watching the sunset, the front porch offers a serene retreat where you can pause and appreciate the beauty of everyday life. With its perfect blend of comfort, functionality, and charm, this 4-bedroom, 4-bathroom house is not just a place to live, but a place to truly call home.








